Looking for community, pool-side living with easy campus access? Find it at The Point.
The Point offers a welcoming environment, putting residents near the Recreation Center
and Lancer Plaza. This living area features a pool, BBQ space and a community area,
making it an excellent place to connect and unwind.
The Point Photo Gallery
Browse through the gallery below and see photos of the living area.
The sparkling pool at The Point offers a refreshing escape and a social hub where
residents can relax, sunbathe or enjoy spontaneous gatherings under the California
sun.
Each double occupancy bedroom includes built-in closets with plenty of storage space,
making it easy to stay organized and keep the space feeling open and tidy.
The single occupancy room features a spacious closet, giving you plenty of room to
store clothes, supplies and everything that makes the space your own.
The Point Amenities
The Point is available to transfer and returning students (freshmen are not eligible).
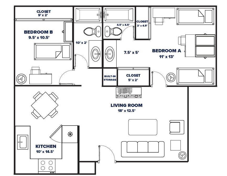
It offers one-bedroom, one-bathroom apartments and two-bedroom, one-bathroom apartments,
accommodating two to three residents.
Each unit includes:
Coed living separated by building
Kitchen with refrigerator, stove/oven and sink
Wireless internet and SpectrumU streaming service
Pool and outdoor community space
Card-swipe access to units
CBU apartments and dorms come fully furnished. The Point includes:
Extra-long twin bed, desk, chair and dresser per resident
Dining table and chairs
Sofa, armchair, coffee table, end table, bookcases and lamp